左营海军眷村—在构眷村记忆场域
左营海军眷村是一个承载着某一代人记忆的场域,尤其是特殊的历史背景及军民文化,在这个场域内形成了眷村特有的氛围及活力。
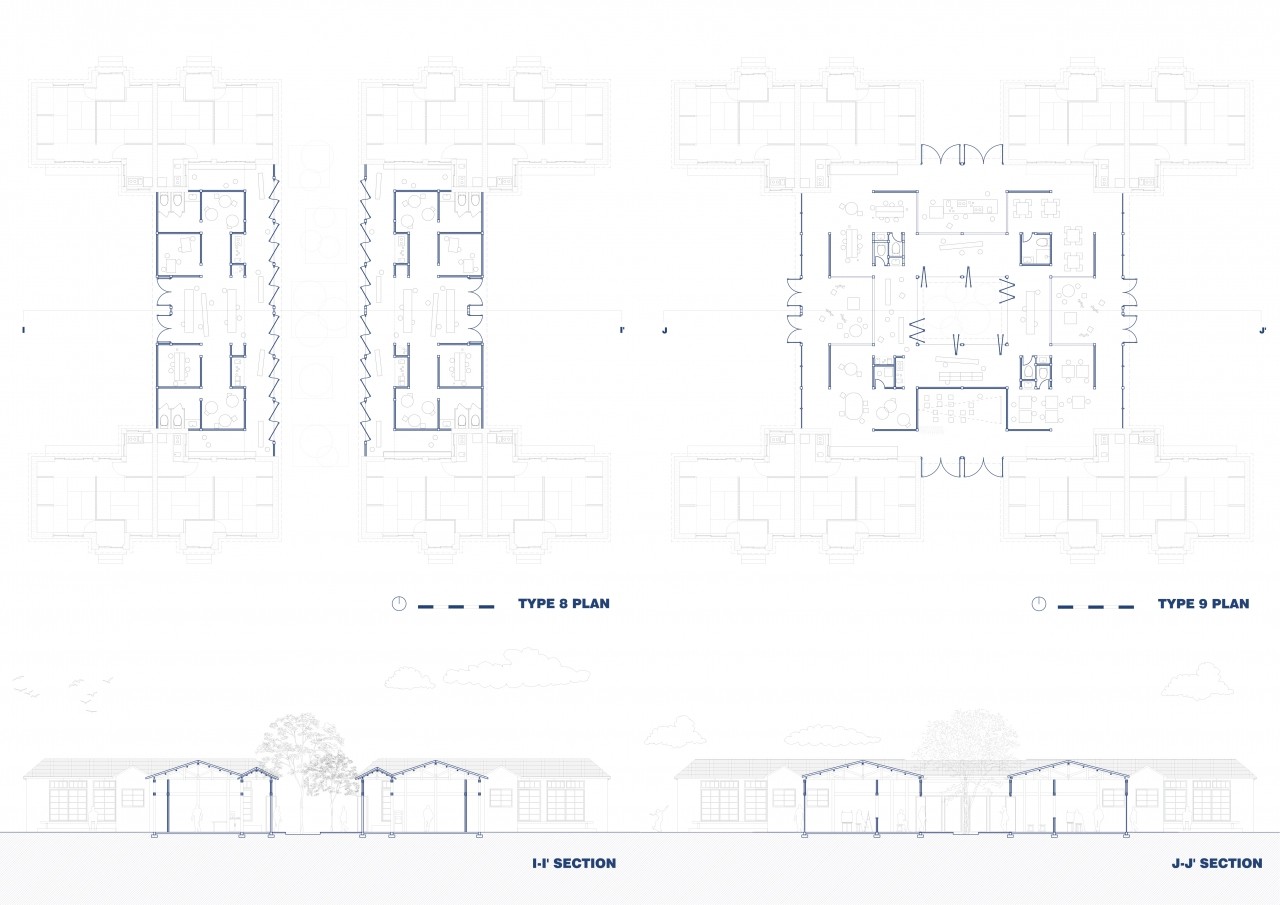
时过境迁之时,随着居民的移出及左营眷村文化中心的加入,这个地方面临历史情怀以及未来新的发展之间的抉择,对于曾经在这里生活的我,我既怀念过往的人声鼎沸、又期望着未来这片区域新可能的加入。所以我透过整理历史脉络、街道纹理、立面元素、结构、建筑尺寸等等,以依法不拆除建物的前提,提出一套具有九个平面的建筑组构语汇。
我针对单栋、双栋及四栋的组构方式提出新的空间连接可能,并依这九种type重新调整整片区域的密度及动线,同时加入在这片区域内活动的三种使用者相对应的机能,提出我对于这片区域活化的示范,并期待将这九种平面如工具般交给居民,将活化、自由、生活感、漫游、组构的选择交给居民,将曾经怀旧的氛围以符合新世代的方式重新将眷村价值呈现于大众之前。
时过境迁之时,随着居民的移出及左营眷村文化中心的加入,这个地方面临历史情怀以及未来新的发展之间的抉择,对于曾经在这里生活的我,我既怀念过往的人声鼎沸、又期望着未来这片区域新可能的加入。所以我透过整理历史脉络、街道纹理、立面元素、结构、建筑尺寸等等,以依法不拆除建物的前提,提出一套具有九个平面的建筑组构语汇。
我针对单栋、双栋及四栋的组构方式提出新的空间连接可能,并依这九种type重新调整整片区域的密度及动线,同时加入在这片区域内活动的三种使用者相对应的机能,提出我对于这片区域活化的示范,并期待将这九种平面如工具般交给居民,将活化、自由、生活感、漫游、组构的选择交给居民,将曾经怀旧的氛围以符合新世代的方式重新将眷村价值呈现于大众之前。