Yearbook of THU-ARCH
作品
建筑人
关于
赞助单位
Language
繁體中文
简体中文
English
回上页
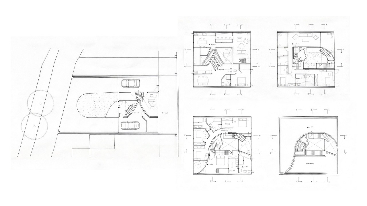
一分二合一__交叠
两彼此熟识之家庭共同出资兴建此双并住宅,且可以接受两户之间在私密性不受干扰状态下的空间重叠或连结关系。 透过量体之间的叠合操作以及厚墙的运用,讨论空间因此而产生的关系。
以三等分的架构分化出Study的量体,在这次的操作中,以中间两个重叠挑空的空间为主题,创造两户之间存在一种对于对方“若有似无”的猜想。
作者
刘子瑄
2023 春季
设计方法演化 (大学部二/三年级)
卢泽彦
居住空间
个人住宅
1:50
0
0
Share
回页首