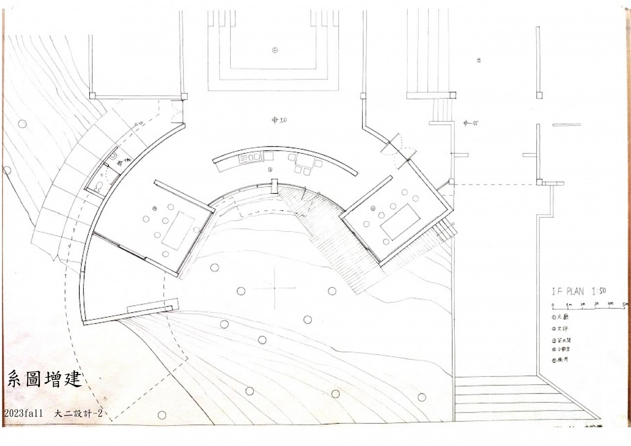
系圖增建
電影分析
安東尼奧尼 紅色沙漠
我在這段所擷取到的點有兩點第一是動與靜的鏡頭在這段劇情內場景是在一個狹小的房間,導演試圖營造一個一鏡到底,急促的敘事,我一開始是依著主角的行動將這段分成四小段,在這四小段裡都有動態的鏡頭與特寫的鏡頭,這之中我發現動態鏡頭所帶給我的空間感是遠大於靜止鏡頭,在這裡我認為動態鏡頭也是使我將這段劇情分段的因素。而再回到動態鏡頭的空間感,我認為是一種平滑的只留下意圖,而場景自身的空間都被鏡頭扭曲成導演的意圖,劇中主要是表現靜態特寫鏡頭間動態的聯繫。我將這種動與靜之間的關係轉化成以弧牆與弧牆所圍出的空間與在其之中出現的開口和角度,我認為在空間中的角落是一個意識的停留點,開口則是一個一是發散出去的點,相較之下弧牆的空間,沒有任何角度也無法直接看到兩端的開口,就有如將原有空間資訊抹去。而在外側的弧牆上的開或角度我認為它是對外的一個強烈的意識的聚集點,相較之下內側弧牆上的開口或角度則是在切分內部空間,因此我的操作會是將弧的外側去對向系館。
安東尼奧尼 紅色沙漠
我在這段所擷取到的點有兩點第一是動與靜的鏡頭在這段劇情內場景是在一個狹小的房間,導演試圖營造一個一鏡到底,急促的敘事,我一開始是依著主角的行動將這段分成四小段,在這四小段裡都有動態的鏡頭與特寫的鏡頭,這之中我發現動態鏡頭所帶給我的空間感是遠大於靜止鏡頭,在這裡我認為動態鏡頭也是使我將這段劇情分段的因素。而再回到動態鏡頭的空間感,我認為是一種平滑的只留下意圖,而場景自身的空間都被鏡頭扭曲成導演的意圖,劇中主要是表現靜態特寫鏡頭間動態的聯繫。我將這種動與靜之間的關係轉化成以弧牆與弧牆所圍出的空間與在其之中出現的開口和角度,我認為在空間中的角落是一個意識的停留點,開口則是一個一是發散出去的點,相較之下弧牆的空間,沒有任何角度也無法直接看到兩端的開口,就有如將原有空間資訊抹去。而在外側的弧牆上的開或角度我認為它是對外的一個強烈的意識的聚集點,相較之下內側弧牆上的開口或角度則是在切分內部空間,因此我的操作會是將弧的外側去對向系館。