Ridiculous Harmony: 重慶南路一段48號

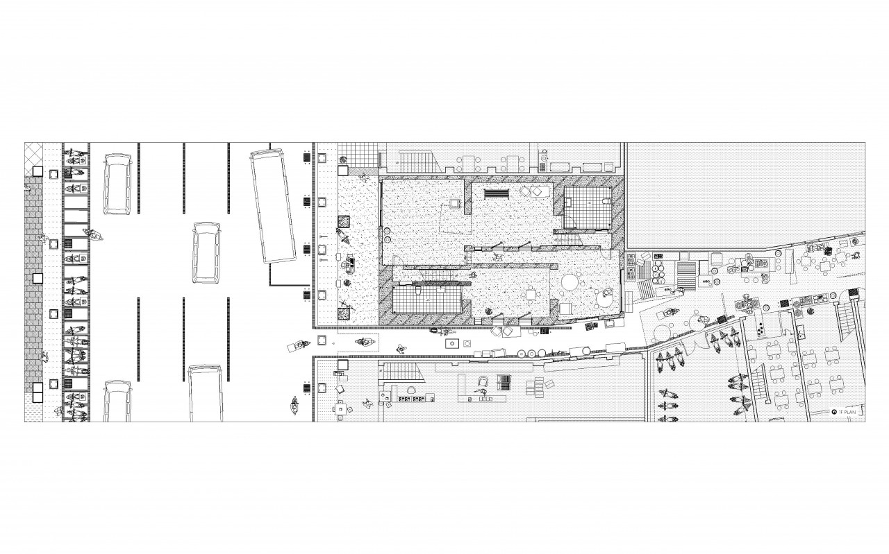
“荒謬” 是一種對末端現象的描述,來自於辨識事物的過程中產生的理解差異。我的觀念從一張影像開始,我在畫面中看見了有張力的並置,那看似無關卻又合理的組合關係,你無法說明是誰被放錯了位置。我用一系列影像實驗思考這樣荒謬的關係從何而來,意圖藉由"拆解"來創造新的空間經驗。基地位於重慶南路一段48號,兩側臨路,面東側是重慶南路,寬20米;北側是重慶南路一段46巷,寬2.5米,一般我們認為巷弄是附屬於街道,但對我而言,他們不具有層級,僅是寬與窄的差異。立面的背後藏了一條巷弄,重慶南路一段46巷,由立面包裹住巷弄的秩序是從日治時期的新高旅店就開始;1960年代,被政府接收後成為郵局,雖然使用被置換了,而其運作及定義的方式仍持續改變進行。

Ridiculous Harmony: 重慶南路一段48號
Ridiculous Harmony: 重慶南路一段48號
What are you doing? ----- 東海建築 劉和宣 畢業設計 Ridiculous Harmony: 重慶南路一段48號 概念影片
Ridiculous Harmony: 重慶南路一段48號
Ridiculous Harmony: 重慶南路一段48號
Ridiculous Harmony: 重慶南路一段48號
Ridiculous Harmony: 重慶南路一段48號
Ridiculous Harmony: 重慶南路一段48號
Ridiculous Harmony: 重慶南路一段48號
Ridiculous Harmony: 重慶南路一段48號
Ridiculous Harmony: 重慶南路一段48號
回頁首