DE-FIRMITAS 去堅固 出租套房公寓
如果穩定、安定、不可被摧毀的堅固性是古典建築的基本三要素
那堅固在當代會是什麼?
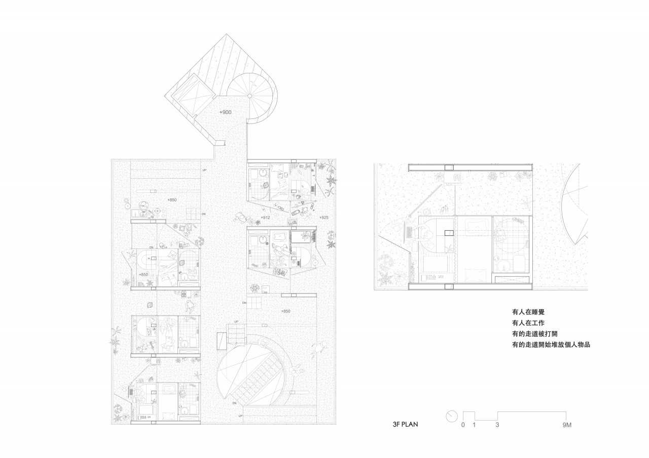
在當代,出租套房是許多人居住的選項。作為一種空間類型:內部空間分越多越好,只要滿足個人最小居住空間,垂直關係斷裂,私人與公共沒有交集。
我從內部結構開始反思,空間不再只是一層一層往上疊,而是在制式平面與多樣性之間找到新的可能。
以 1-4年短期租約,個人最小居住空間去討論:當每個人在個人單元裡進行活動,空間被打開、關閉;被定義成私人、公共;被界定成室內、室外。
個人與他者的關係不再固定,而是不斷進行變動......
居住空間被傾斜的結構,以及交錯的高差所建構。居住與公共的使用並不絕對,而是由居住者的使用去界定:是走道也是桌子;是結構也是掛衣架,強烈的建築元素與生活痕跡被並置在一起。
建築元素層層分明,彼此看似獨立,卻又互相支撐。如何理解整體?
如何理解部分?
如何理解部分與整體之間的關係?
似乎由觀看角度決定,
單元與整體、部分與部分、空間跟空間的關係,並不固定
而是由使用者去定義,
因而被去堅固
那堅固在當代會是什麼?
在當代,出租套房是許多人居住的選項。作為一種空間類型:內部空間分越多越好,只要滿足個人最小居住空間,垂直關係斷裂,私人與公共沒有交集。
我從內部結構開始反思,空間不再只是一層一層往上疊,而是在制式平面與多樣性之間找到新的可能。
以 1-4年短期租約,個人最小居住空間去討論:當每個人在個人單元裡進行活動,空間被打開、關閉;被定義成私人、公共;被界定成室內、室外。
個人與他者的關係不再固定,而是不斷進行變動......
居住空間被傾斜的結構,以及交錯的高差所建構。居住與公共的使用並不絕對,而是由居住者的使用去界定:是走道也是桌子;是結構也是掛衣架,強烈的建築元素與生活痕跡被並置在一起。
建築元素層層分明,彼此看似獨立,卻又互相支撐。如何理解整體?
如何理解部分?
如何理解部分與整體之間的關係?
似乎由觀看角度決定,
單元與整體、部分與部分、空間跟空間的關係,並不固定
而是由使用者去定義,
因而被去堅固