Approaching Tectonics - 接口与转换 / Interface & Transition
第一阶段 : 整体设计从构造关系出发,透过海量案例分析理解构造本身的意义或是被创造的可能性。透过内化、整理,整理出的策略希望以细、轻巧的杆件去形成空间。透过实际用木板构筑模板进行浇灌形成底座支撑上面的空间,利用悬吊系统去支撑皮层。而皮层又分属自己的皮层与骨架两个部分,尝试利用骨架的双柱系统形成格点,支撑起皮层,并使格点之外的固定点,能有开口的可能性。也因为皮层系统不用落地,也给了空间更多缝隙有空气流动的可能存在。悬挑出去的板,利用钢索的拉力,使其不致下垂,给了另一个空间悬吊的基础。
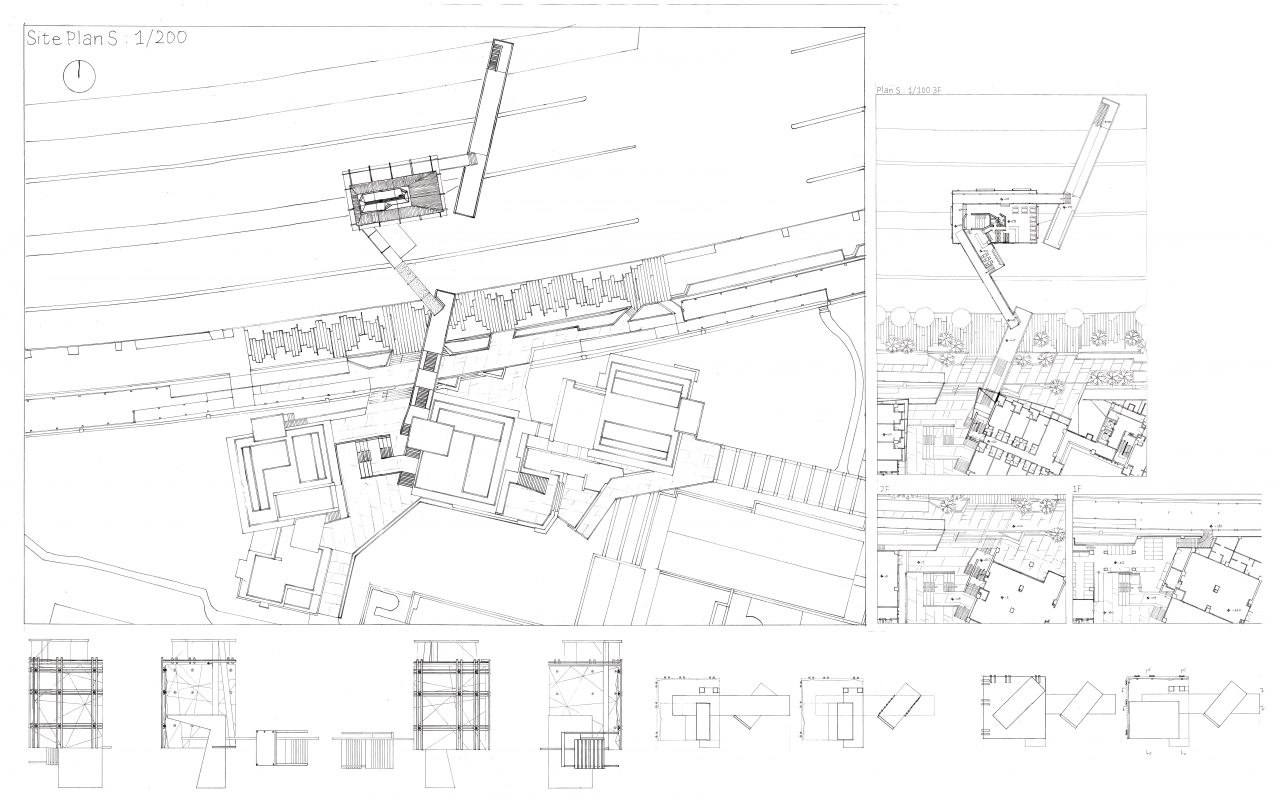
第二阶段 : 学校新宿舍建成之后,校园接口被打开,利用延伸校园纹理的方向性,去强化接口被打破的事情。将宿舍围塑出的广场视为桥的一部分,当置入桥体之后,借由广场方向性的转变,让广场中央的人们与建筑物的关系更接近。而非像旧的楼梯一样,人们上楼时仅视广场为过渡。桥中间部分是机能放置主要区域,利用材料的不同去讲述不同空间转换的关系。混凝土作为桥的前后两端主要材料,与中间机能部分则是用较虚的水沟盖板和桁架系统组成。人们在较快速的过道(水沟盖板)与休息区、饮料店和豆花店之间,来回穿梭桁架形成的接口。延续前面的浇灌、皮层骨架与悬吊的关系,进一步去创造半户外的用餐及休息空间。中间似塔状的空间,容纳了休息区和两间厕所。利用开高窗引对流的方式给予通风,和适度的开口给予光线,给予一种奇特的空间体验。
细部构造 : 井字型格点系统,每根钢柱断面为15x5公分,利用夹住玻璃爪具与其杆件之方式在骨架系统内与外支撑起玻璃和40mm PC板。利用Triple Layer的做法给予立面不完全封闭,有缝隙能通风的可能。
第二阶段 : 学校新宿舍建成之后,校园接口被打开,利用延伸校园纹理的方向性,去强化接口被打破的事情。将宿舍围塑出的广场视为桥的一部分,当置入桥体之后,借由广场方向性的转变,让广场中央的人们与建筑物的关系更接近。而非像旧的楼梯一样,人们上楼时仅视广场为过渡。桥中间部分是机能放置主要区域,利用材料的不同去讲述不同空间转换的关系。混凝土作为桥的前后两端主要材料,与中间机能部分则是用较虚的水沟盖板和桁架系统组成。人们在较快速的过道(水沟盖板)与休息区、饮料店和豆花店之间,来回穿梭桁架形成的接口。延续前面的浇灌、皮层骨架与悬吊的关系,进一步去创造半户外的用餐及休息空间。中间似塔状的空间,容纳了休息区和两间厕所。利用开高窗引对流的方式给予通风,和适度的开口给予光线,给予一种奇特的空间体验。
细部构造 : 井字型格点系统,每根钢柱断面为15x5公分,利用夹住玻璃爪具与其杆件之方式在骨架系统内与外支撑起玻璃和40mm PC板。利用Triple Layer的做法给予立面不完全封闭,有缝隙能通风的可能。