Approaching Tectonics - 介面與轉換 / Interface & Transition
第一階段 : 整體設計從構造關係出發,透過海量案例分析理解構造本身的意義或是被創造的可能性。透過內化、整理,整理出的策略希望以細、輕巧的桿件去形成空間。透過實際用木板構築模板進行澆灌形成底座支撐上面的空間,利用懸吊系統去支撐皮層。而皮層又分屬自己的皮層與骨架兩個部分,嘗試利用骨架的雙柱系統形成格點,支撐起皮層,並使格點之外的固定點,能有開口的可能性。也因為皮層系統不用落地,也給了空間更多縫隙有空氣流動的可能存在。懸挑出去的板,利用鋼索的拉力,使其不致下垂,給了另一個空間懸吊的基礎。
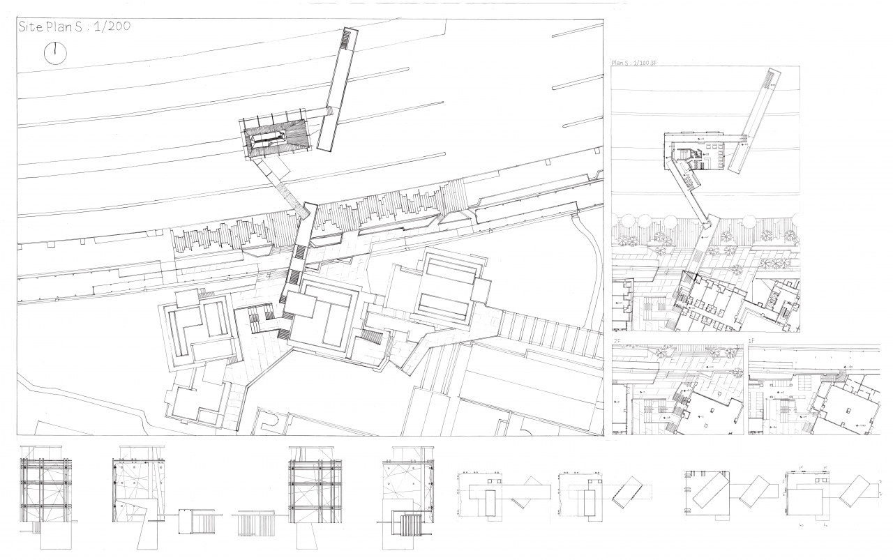
第二階段 : 學校新宿舍建成之後,校園介面被打開,利用延伸校園紋理的方向性,去強化介面被打破的事情。將宿舍圍塑出的廣場視為橋的一部分,當置入橋體之後,藉由廣場方向性的轉變,讓廣場中央的人們與建築物的關係更接近。而非像舊的樓梯一樣,人們上樓時僅視廣場為過渡。橋中間部分是機能放置主要區域,利用材料的不同去講述不同空間轉換的關係。混凝土作為橋的前後兩端主要材料,與中間機能部分則是用較虛的水溝蓋板和桁架系統組成。人們在較快速的過道(水溝蓋板)與休息區、飲料店和豆花店之間,來回穿梭桁架形成的介面。延續前面的澆灌、皮層骨架與懸吊的關係,進一步去創造半戶外的用餐及休息空間。中間似塔狀的空間,容納了休息區和兩間廁所。利用開高窗引對流的方式給予通風,和適度的開口給予光線,給予一種奇特的空間體驗。
細部構造 : 井字型格點系統,每根鋼柱斷面為15x5公分,利用夾住玻璃爪具與其桿件之方式在骨架系統內與外支撐起玻璃和40mm PC板。利用Triple Layer的做法給予立面不完全封閉,有縫隙能通風的可能。
第二階段 : 學校新宿舍建成之後,校園介面被打開,利用延伸校園紋理的方向性,去強化介面被打破的事情。將宿舍圍塑出的廣場視為橋的一部分,當置入橋體之後,藉由廣場方向性的轉變,讓廣場中央的人們與建築物的關係更接近。而非像舊的樓梯一樣,人們上樓時僅視廣場為過渡。橋中間部分是機能放置主要區域,利用材料的不同去講述不同空間轉換的關係。混凝土作為橋的前後兩端主要材料,與中間機能部分則是用較虛的水溝蓋板和桁架系統組成。人們在較快速的過道(水溝蓋板)與休息區、飲料店和豆花店之間,來回穿梭桁架形成的介面。延續前面的澆灌、皮層骨架與懸吊的關係,進一步去創造半戶外的用餐及休息空間。中間似塔狀的空間,容納了休息區和兩間廁所。利用開高窗引對流的方式給予通風,和適度的開口給予光線,給予一種奇特的空間體驗。
細部構造 : 井字型格點系統,每根鋼柱斷面為15x5公分,利用夾住玻璃爪具與其桿件之方式在骨架系統內與外支撐起玻璃和40mm PC板。利用Triple Layer的做法給予立面不完全封閉,有縫隙能通風的可能。