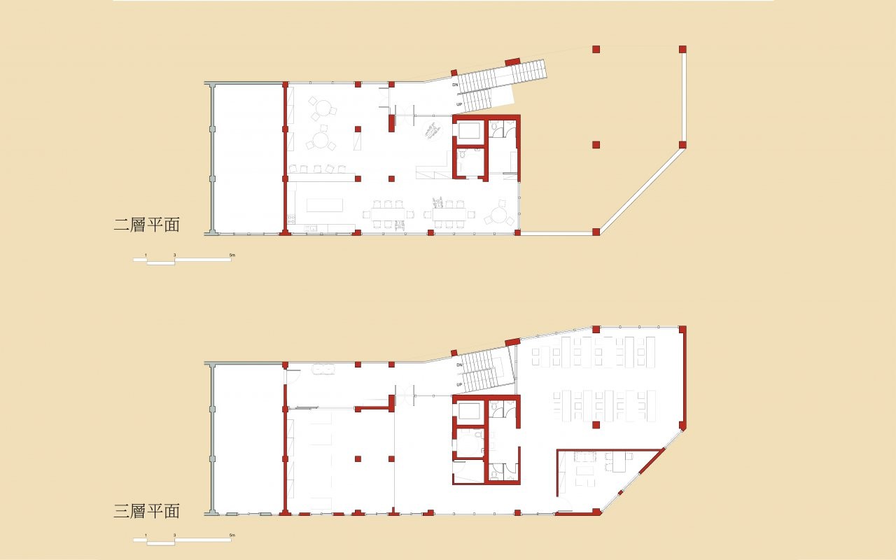
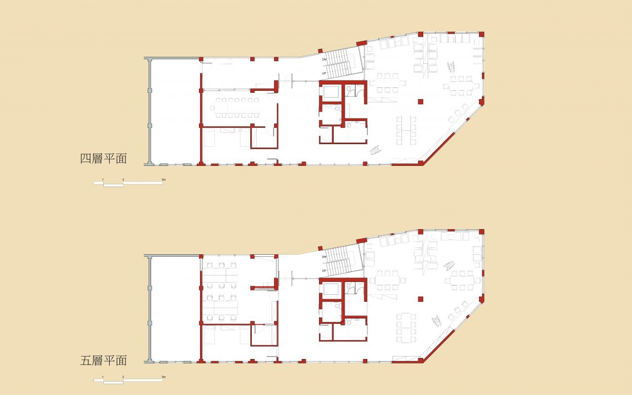
The Daycare center beside Redevelopment Zone
Background/
The government promoted the Taichung Grand Station Project to try to solve the problem of hollowing out of Taichung's urban area, and tried to create a scene of high commercial density in the rezoning of Gancheng.
Issue/
Re-urbanization is not the previous western pioneering vision of building the future in an open space. Next to the re-zoned area is a settlement that was established as early as 1980. The scale of daily life in this settlement and the memory of wandering through the lanes are completely different from the scale of life in the rezoned area. In addition, under the background that the floor area ratio of the base building is over-used and the commercial activities of rezoning become active, the pursuit of economic benefits of the land is that the settlement of the base has become more modern and began to be renovated slowly.
Design/
Day-care meets the needs of the elderly around the settlement, and can also become a public space that connects the new and the old. Reconnect the extremely different textures on both sides of the base, and maintain the experience of living in the alleys. Later, when the buildings in the settlement will be rebuilt, the connection between the old and the new has been established first. Even if the surrounding area is slowly refurbished, the base can still retain some memories and experiences under urbanization.
The government promoted the Taichung Grand Station Project to try to solve the problem of hollowing out of Taichung's urban area, and tried to create a scene of high commercial density in the rezoning of Gancheng.
Issue/
Re-urbanization is not the previous western pioneering vision of building the future in an open space. Next to the re-zoned area is a settlement that was established as early as 1980. The scale of daily life in this settlement and the memory of wandering through the lanes are completely different from the scale of life in the rezoned area. In addition, under the background that the floor area ratio of the base building is over-used and the commercial activities of rezoning become active, the pursuit of economic benefits of the land is that the settlement of the base has become more modern and began to be renovated slowly.
Design/
Day-care meets the needs of the elderly around the settlement, and can also become a public space that connects the new and the old. Reconnect the extremely different textures on both sides of the base, and maintain the experience of living in the alleys. Later, when the buildings in the settlement will be rebuilt, the connection between the old and the new has been established first. Even if the surrounding area is slowly refurbished, the base can still retain some memories and experiences under urbanization.