重劃邊界旁的日間照護中心
背景/政府推動台中大車站計畫試圖解決台中市區空洞化的問題,並試圖在干城重劃區創造一個商業密度高的景象。
議題/再都市化並非以往西部拓荒式的在一片空地去建設未來的願景,在重劃區旁的是一個早於1980年就建立起來的聚落。而在這聚落上日常生活的尺度、在小巷道間遊逛的記憶,與重劃區的生活尺度式截然不同的。並且,基地建物容積率多使用過剩及重劃區的商業活動變活絡的背景下,追求土地經濟效益的情況,便是基地的聚落變得更現代化,開始慢慢翻新。
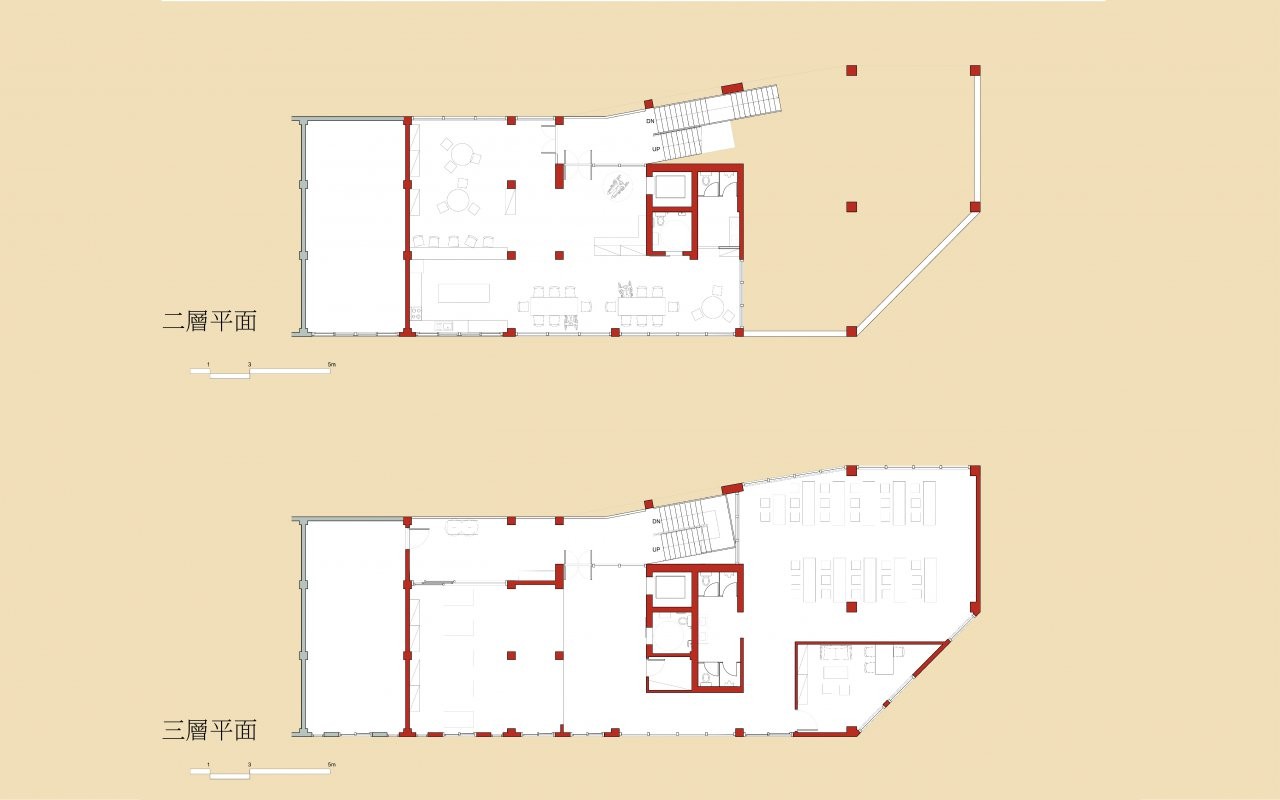
設計/日間照護滿足聚落周遭老人的需要,也可以變成連接新與舊的公共場域。重新連結基地兩邊的差異極大的紋理,並保持了穿梭在小巷生活的經驗。之後聚落的建築物們將面臨重建時,連結讓新舊的關係已經先建立。即便周遭慢慢的重新翻新,仍然基地可以在都市化下保有一些記憶與經驗。
議題/再都市化並非以往西部拓荒式的在一片空地去建設未來的願景,在重劃區旁的是一個早於1980年就建立起來的聚落。而在這聚落上日常生活的尺度、在小巷道間遊逛的記憶,與重劃區的生活尺度式截然不同的。並且,基地建物容積率多使用過剩及重劃區的商業活動變活絡的背景下,追求土地經濟效益的情況,便是基地的聚落變得更現代化,開始慢慢翻新。
設計/日間照護滿足聚落周遭老人的需要,也可以變成連接新與舊的公共場域。重新連結基地兩邊的差異極大的紋理,並保持了穿梭在小巷生活的經驗。之後聚落的建築物們將面臨重建時,連結讓新舊的關係已經先建立。即便周遭慢慢的重新翻新,仍然基地可以在都市化下保有一些記憶與經驗。