Yearbook of THU-ARCH
作品
建筑人
关于
赞助单位
Language
繁體中文
简体中文
English
回上页
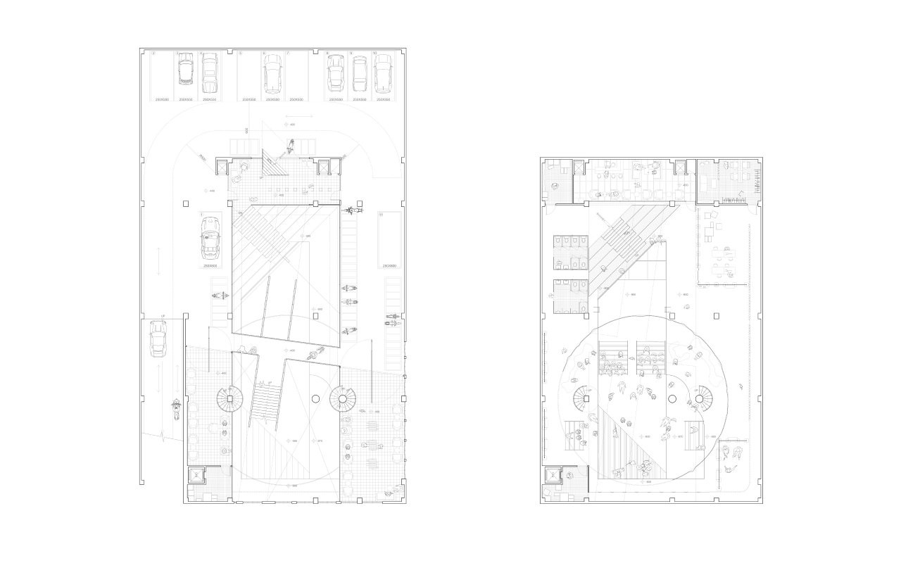
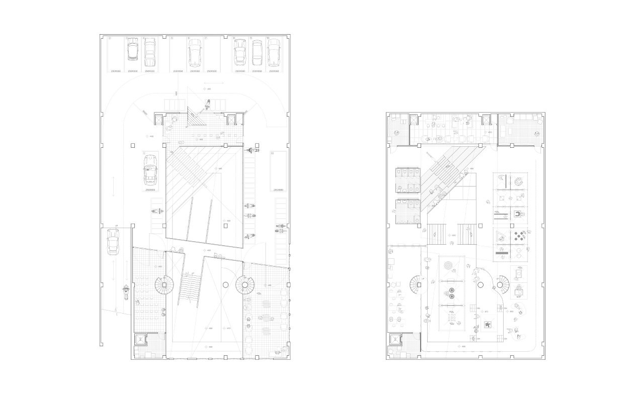
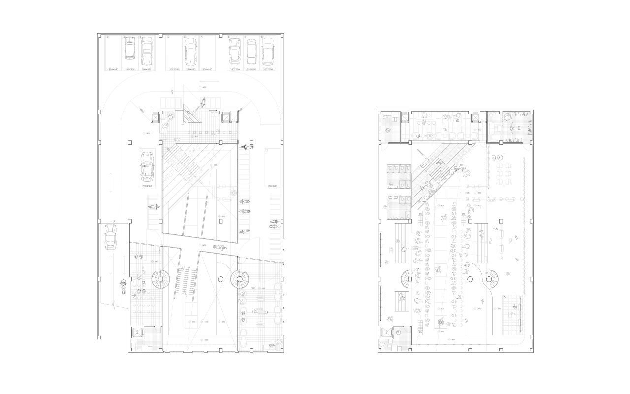
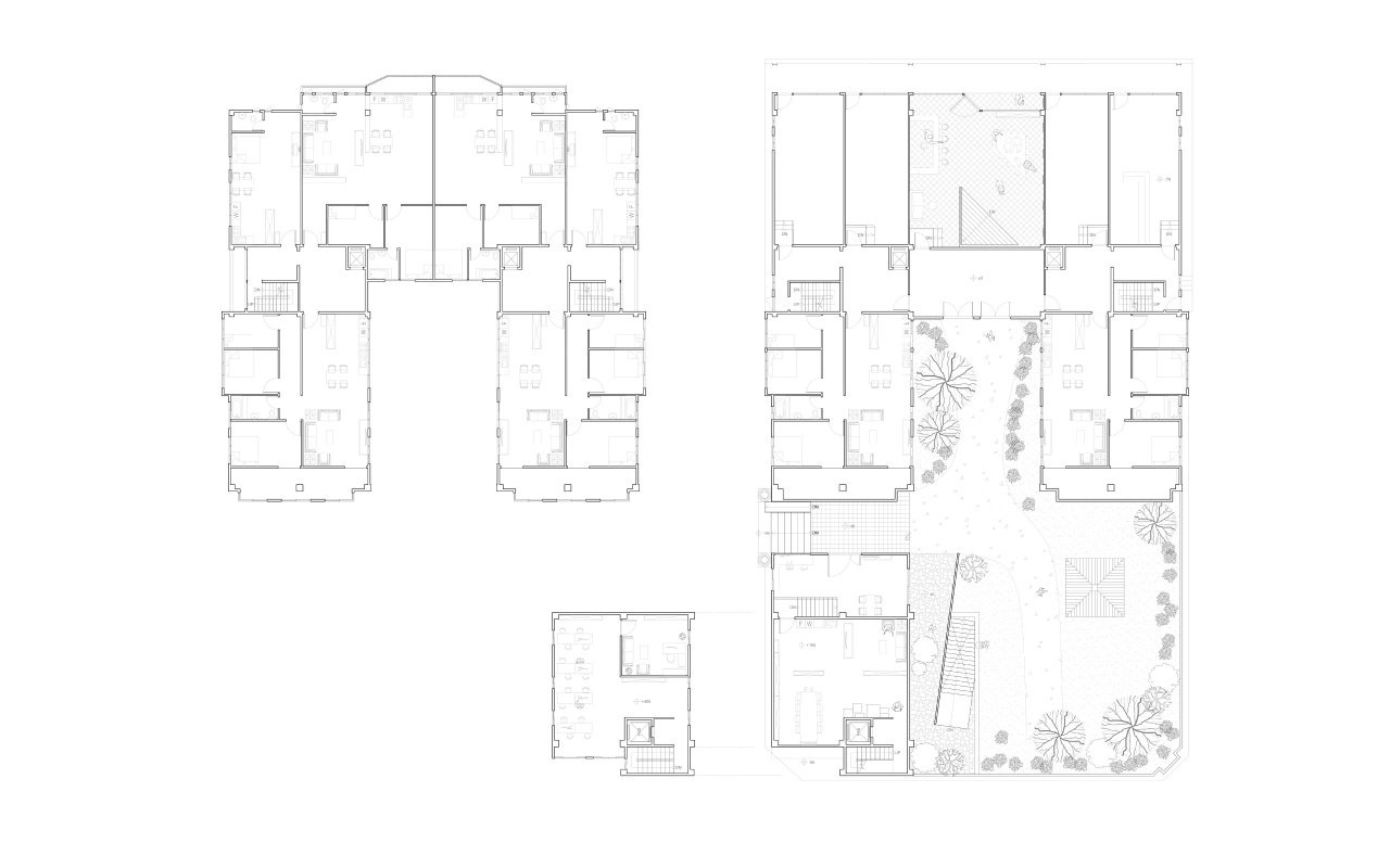
建筑的同时性_地上社区和地下舞台
我喜欢不同事物组合成一件事;喜欢不同时间的同个事物,组合成一件事。建筑,有没有这种可能?我找到一个封闭社区的废弃地下泳池做为基地,我要让这个地下泳池变成附近工作室的公共空间,随时间被不同工作室使用。
要使建筑有同时性,空间最好是开放的,甚至取消垂直和水平的分隔。于是置入一个弧形在挑高的泳池,机能、族群、结构、活动都能在此重叠,弧形使平面变立体,而重叠的部分,可以是立体的任何一侧。
作者
陈唯轩
2021 春季
专题研究设计 (大学部四/五年级)
五年级
简志颖
居住空间
共居
1:50
同时性
7
0
Share
回页首