Yearbook of THU-ARCH
作品
建築人
關於
贊助單位
Language
繁體中文
简体中文
English
回上頁
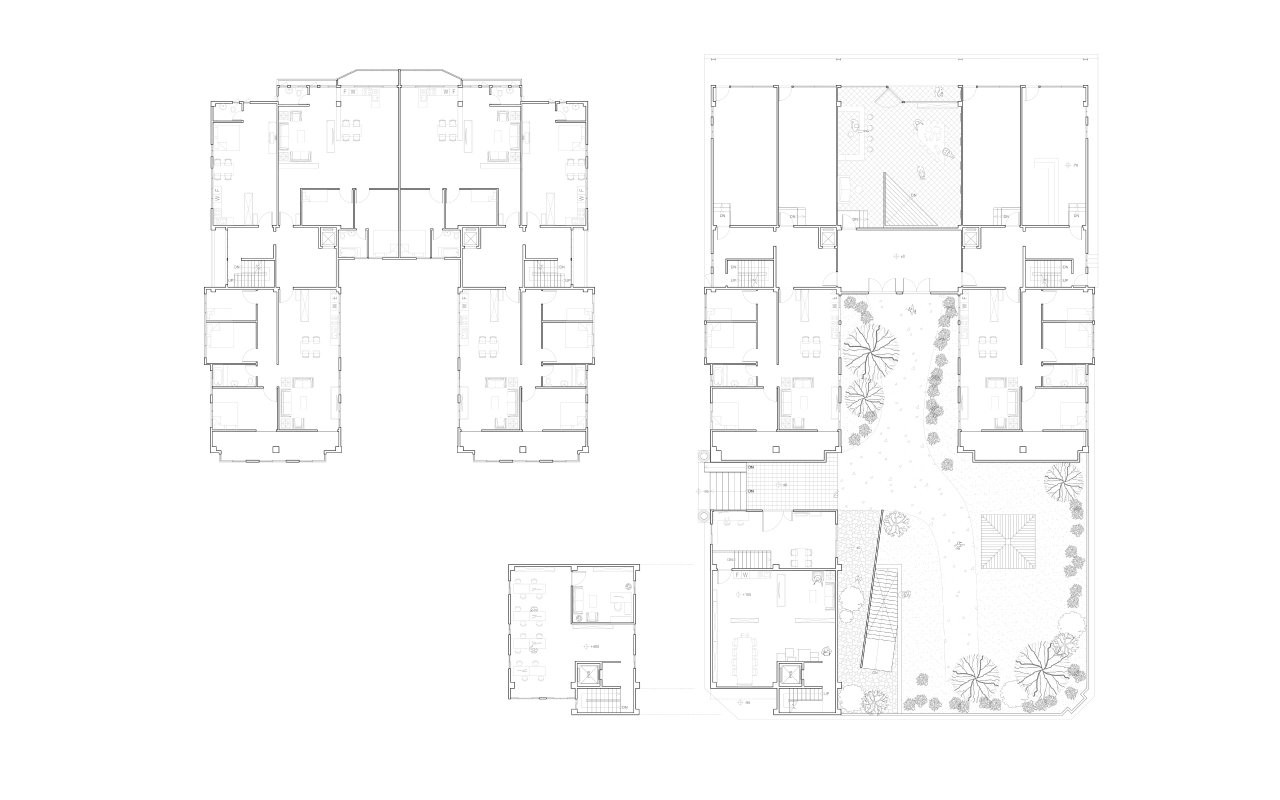
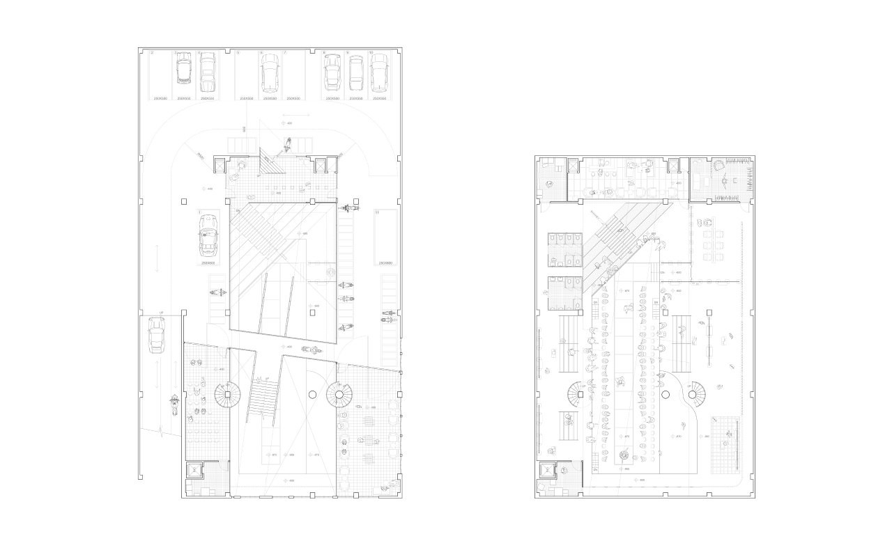
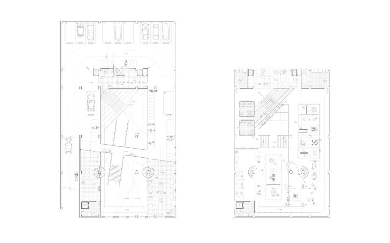
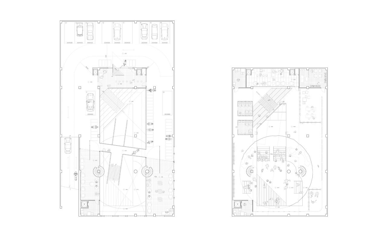
建築的同時性_地上社區和地下舞台
我喜歡不同事物組合成一件事;喜歡不同時間的同個事物,組合成一件事。建築,有沒有這種可能?我找到一個封閉社區的廢棄地下泳池做為基地,我要讓這個地下泳池變成附近工作室的公共空間,隨時間被不同工作室使用。
要使建築有同時性,空間最好是開放的,甚至取消垂直和水平的分隔。於是置入一個弧形在挑高的泳池,機能、族群、結構、活動都能在此重疊,弧形使平面變立體,而重疊的部分,可以是立體的任何一側。
作者
陳唯軒
2021 春季
專題研究設計 (大學部四/五年級)
五年級
簡志穎
居住空間
共居
1:50
同時性
7
0
Share
回頁首