倒数派对

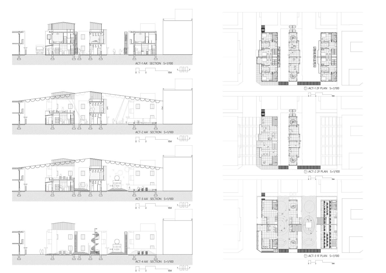
设计以桃园市大园区竹围里作为基地,此区是桃园航空城第三航道预定地,并且是唯一全区被征收的里,未来将消失于地图上。竹围里居民从2022年3月开始搬迁,直到2024年10月全数撤离之前,该区处于“半空城时期”,亦即部分居民、家具、活动等已经溢出原有的地点,留下空屋及物件。“原本应该均质分布的(事件)聚集了起来,这些点状分布的事件便产生了(某种新的秩序)。在保有原本的意图下,这些新秩序依据逸出空间(脱离实用性)、逸出原本位置、逸出规模而有不同形态。”在半空城时期,我将作为一名策展人,策划一场倒数派对。剧场重新赋予基地新的运作时间,并利用空屋及从竹围里搜集来的物件(可能是招牌、铁窗、废材等)重新分类使用。剧场将展示一场三幕剧,同时伴随换景,将建筑逐步拆解,让观者与演员在每幕都有不同的视角与互动。在最后的物件展览后,设计本身也将随竹围里一起消失。
回页首