倒數派對

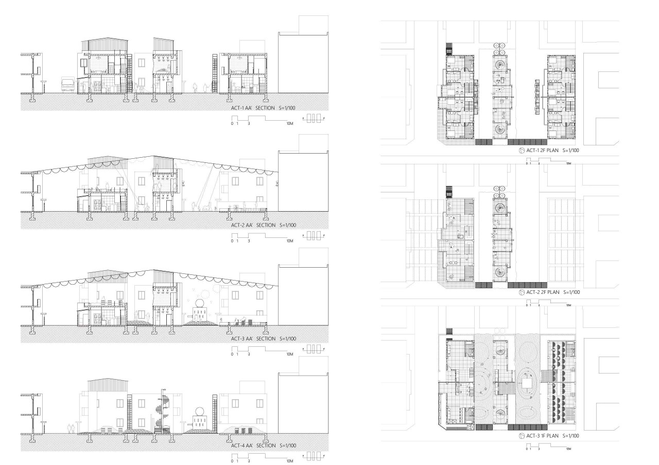
設計以桃園市大園區竹圍里作為基地,此區是桃園航空城第三航道預定地,並且是唯一全區被徵收的里,未來將消失於地圖上。竹圍里居民從2022年3月開始搬遷,直到2024年10月全數撤離之前,該區處於「半空城時期」,亦即部分居民、家具、活動等已經溢出原有的地點,留下空屋及物件。「原本應該均質分布的(事件)聚集了起來,這些點狀分布的事件便產生了(某種新的秩序)。在保有原本的意圖下,這些新秩序依據逸出空間(脫離實用性)、逸出原本位置、逸出規模而有不同形態。」在半空城時期,我將作為一名策展人,策劃一場倒數派對。劇場重新賦予基地新的運作時間,並利用空屋及從竹圍里搜集來的物件(可能是招牌、鐵窗、廢材等)重新分類使用。劇場將展示一場三幕劇,同時伴隨換景,將建築逐步拆解,讓觀者與演員在每幕都有不同的視角與互動。在最後的物件展覽後,設計本身也將隨竹圍里一起消失。
回頁首