Yearbook of THU-ARCH
作品
建筑人
关于
赞助单位
Language
繁體中文
简体中文
English
回上页
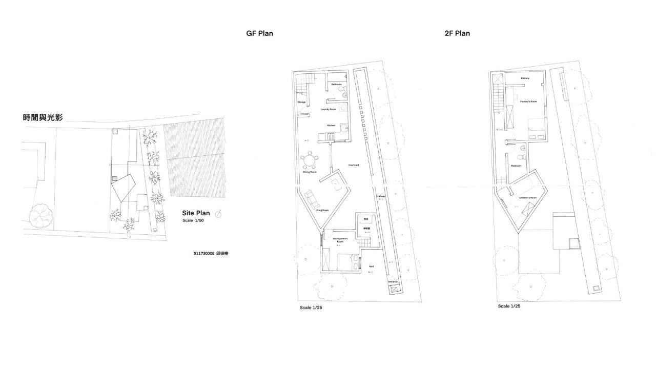
光影与时间
一个空间是否有着自己的时间?怎样的空间会让人一闪而过,又怎样的空间会让人驻足久留?
光线明订了时间的流逝,可能也暗示了三代同堂的家中人们的生活习惯与一天的轨迹。
作者
邱徐乐
2023秋季
设计方法演化 (大学部二/三年级)
郭圣杰
0
0
Share
回页首