Yearbook of THU-ARCH
作品
建築人
關於
贊助單位
Language
繁體中文
简体中文
English
回上頁
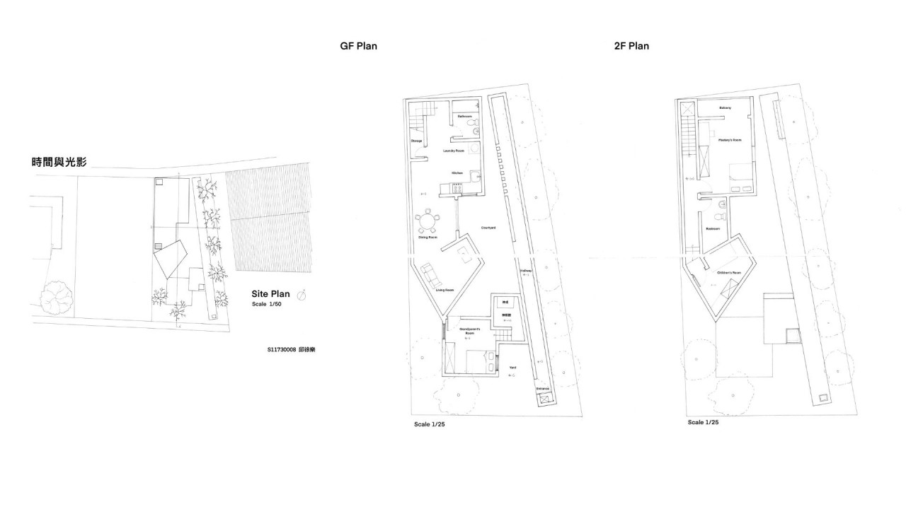
光影與時間
一個空間是否有著自己的時間?怎樣的空間會讓人一閃而過,又怎樣的空間會讓人駐足久留?
光線明訂了時間的流逝,可能也暗示了三代同堂的家中人們的生活習慣與一天的軌跡。
作者
邱徐樂
2023秋季
設計方法演化 (大學部二/三年級)
郭聖傑
0
0
Share
回頁首