Yearbook of THU-ARCH
Projects
People
About
Sponsors
Language
繁體中文
简体中文
English
Go back
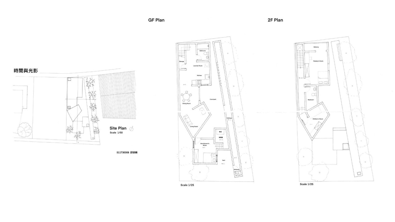
光影與時間
一個空間是否有著自己的時間?怎樣的空間會讓人一閃而過,又怎樣的空間會讓人駐足久留?
光線明訂了時間的流逝,可能也暗示了三代同堂的家中人們的生活習慣與一天的軌跡。
Author
邱徐樂
2023 Fall
Design Methodology Development (DMD) 2nd 3rd Year
Sheng-Chieh, Ko
0
0
Share
Back to Top